Prodej historické chalupy v obci Podbranč na Slovensku.

Kristýna Buráňová
Více informací Vám poskytne makléř
Kristýna Buráňová
776 866 296 / info@fit-reality.cz

V exkluzivním zastoupení nabízíme chalupu z roku 1821, která je umístěna v obci Podbranč-Majeričky ve Slovenské republice.

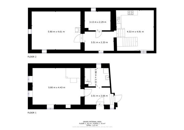
Chalupa má obdélníkový půdorys s mansardovou střechou o celkové užitné ploše 133 m2.

1.NP má plochu 94,4 ma podkroví 49 m2.

Pozemky okolo chalupy mají celkovou výměru 1 262 m2.


Svislé nosné konstrukce jsou šířky od 400 do 500mm. Stropy nad 1.NP jsou dřevěné, vytvořené jako trámový strop s viditelnými trámy. Dělící konstrukce jsou zděné, stejně tak schody do podkroví. Okna jsou dvojité dřevěné, rámové. Dveře jsou dřevěné rámové plné.

Veškeré půdorysy jsou součástí fotogalerie a také přiložené 3D prohlídky.

https://my.matterport.com/show/?m=utnj2MuGgBz


V chalupě je přivedena elektřina, která je rozvedena po celém domě s rozvaděčem a pojistkami. 

Kanalizace je vedená formou trativodu a venkovní WC je suché. Chalupa je připojena k vodovodní síti a rozvody jsou po celém 1.NP.

Vytápění je řešeno pomocí krbových kamen a ohřev vody pomocí průtokového ohřívače.


Cena chalupy je stanovena na 70 000,- €.


V blízkosti chalupy nabízíme ještě několik pozemků ve spoluvlastnictví (např. zahrady) a v případě zájmu poskytneme bližší informace.


V případě jakýchkoliv dotazů nebo prohlídky nás neváhejte kontaktovat na tel. čísle +420 776 866 296.

Cena70 000,- Euro
()
KrajTrnava
OkresSenice
Číslo zakázky2025148
Počet nadzemních podlaží2
Druh objektuChalupa
Stav objektuDobrý
VlastnictvíOsobní
DopravaAuto, Bus
Užitná plocha133 m²
Plocha parcely1 262 m²
Plocha zahrady1 262 m²
Zastavěná plocha133 m²
Rok výstavby1821
SklepNe
TopeníKamna
ElektřinaAno
VodaAno
OdpadTrativod
Energetická náročnost budovyTřída G - nehospodárná

Máte zájem o tuto nemovitost?

Napište nám

Máte dotaz nebo chcete pomoct najít vhodnou nemovitost?
Napište nám, na vaší zprávu odpovíme nejpozději do 48 hodin.

Chci poslat zprávu

Zavoláme vám

Nechte nám vaše telefonní číslo, ozveme se vám.

Nebo volejte
728 897 533

Vyplňte jednoduchý formulář a my se vám ozveme